Capital Campaign

A Brighter Future Begins Here: First Light Capital Campaign

Every transformation begins with a single step forward. This project represents more than construction. It is the foundation for countless new beginnings. At First Light, we believe every woman and child deserves a safe place to rest, recover, and rebuild. That belief drives our Capital Campaign to transform and expand our downtown Birmingham facility, allowing us to better serve the growing number of women and families experiencing homelessness.

Our Vision

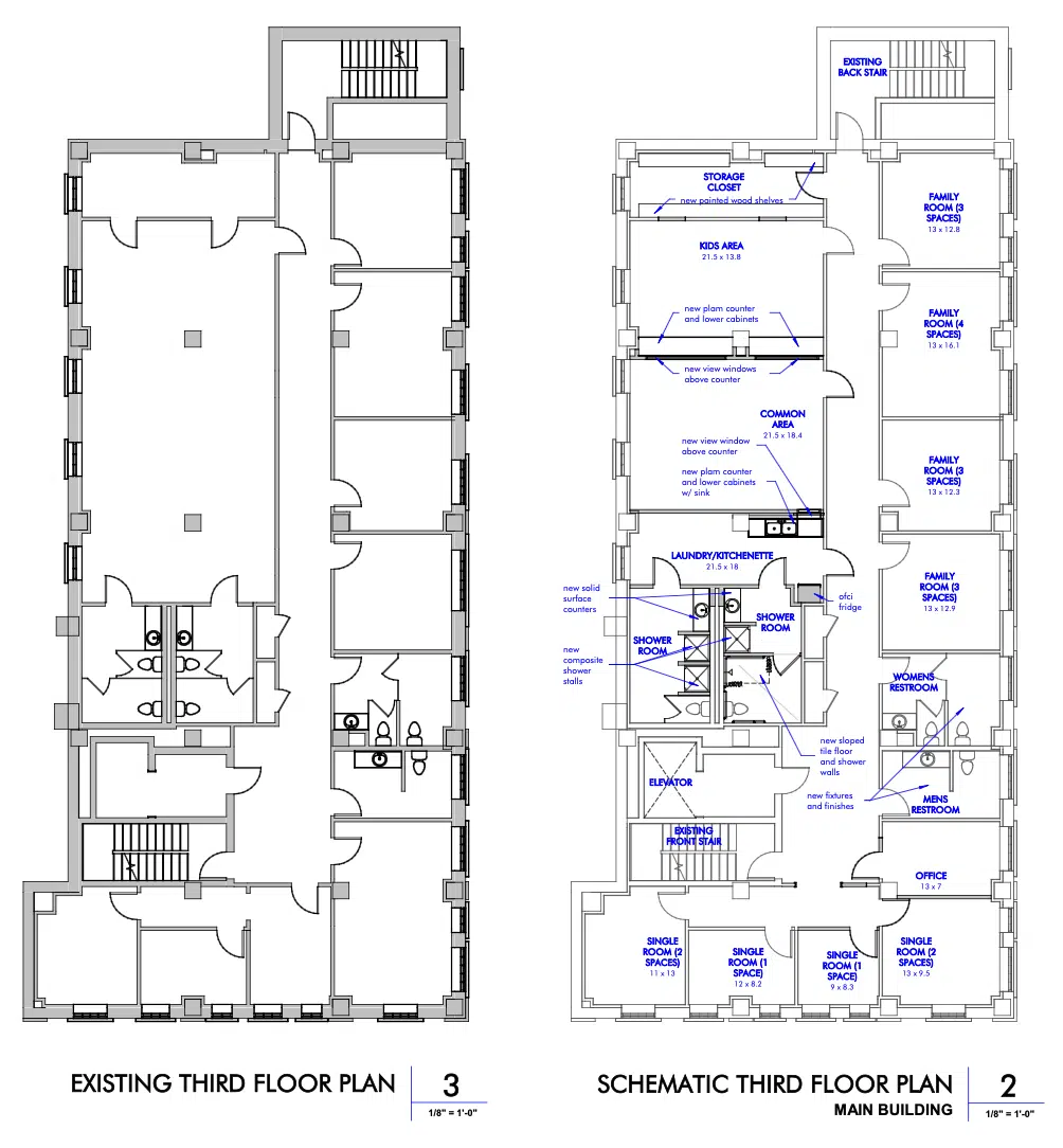
Through this transformative campaign, First Light will create a comprehensive support environment by: •Expanding Living Capacity- The third-floor administrative area will become a welcoming residential space featuring private accommodations for women and children, including dedicated family and individual rooms. Residents will have access to shared bathing facilities, multi-purpose common areas designed for meals and study time, convenient laundry and kitchen facilities, and a specially designed children's activity zone. •Creating Professional Support Spaces- The adjacent structure will be transformed from a service garage into a modern office complex, providing confidential meeting spaces where staff, guests, and case managers can collaborate in comfortable, professional environments. These spaces will also serve community partners and local organizations, extending our impact beyond our immediate residents. •Ensuring Seamless Connectivity- A protected, accessible walkway will unite the shelter and office areas, creating safe passage while maintaining security and weather protection for all users.

Why This Matters

The need in our community has never been greater. Right now, families seeking our services face an unacceptable reality of sleeping on mats in spaces that were once offices and offer little to no privacy. Every person who comes to us deserves safety, dignity, and hope. Through this capital campaign, we will transform our space to: • Restore dignity by providing private, comfortable accommodations for women and families. • Enhance safety and security with improved layouts and upgraded facilities. • Empower our staff with professional workspace and confidential meeting areas. • Strengthen our impact through seamless, secure connections between all service areas. This isn't just about expanding our physical footprint. It's about honoring the courage it takes for families to seek help and ensuring they receive the respectful, comprehensive care they deserve. When we invest in better facilities, we invest in better outcomes. We invest in healing, stability, and the fundamental belief that everyone deserves a safe place to rebuild their lives.

Third Floor Plans

Family Room & Single Room

Project Scope

This comprehensive transformation encompasses three distinct areas: -Third Floor Renovation (4,683 square feet): The existing office space will be reconfigured to accommodate both individual family units and single-occupancy sleeping quarters, alongside shared community spaces, bathing facilities, and dedicated areas for meals and laundry services. -Office Annex (5,496 square feet spanning two levels): The former service garage facility will undergo complete renovation to house administrative offices, private consultation spaces, group meeting areas, and essential support facilities for staff operations and will be open to the community for meetings. -Connector Corridor (315 square feet): A new enclosed, temperature-controlled passageway will establish seamless connectivity between the main shelter and annex buildings, enhancing circulation patterns for both residents and personnel.

Budget

Our comprehensive project budget totals 3.5 million dollars, covering: •General construction and structural modifications, HVAC, electrical, and plumbing systems. •Fire protection and safety enhancements, thermal and moisture protection. •Accessibility improvements, interior build out and finishes, contingency design and fees. •Furnishings and finishes designed for comfort and durability and trauma informed care design.

Help Us Build What Comes Next

Together, we're constructing more than walls and rooms. We're building pathways to independence, spaces for healing, and environments where dignity is restored. Each contribution moves us closer to a tomorrow where crisis becomes catalyst, and uncertainty transforms into opportunity. Your impact extends beyond today's gift and will echo through generations of families who will find refuge, rebuild their confidence, and reclaim their futures within these walls. Stand with us as we create what comes next. Because when we build together, we build stronger. Donate Today. Transform Tomorrow.

Give Today

Every gift supports the cost of shelter, operations, and programs.
Untitled

Sign up for our newsletter